Artboard 1? alert-icon? Artboard 1? ? ? delete-icon? edit-icon? email-icon hide-hover-icon? Artboard 1? login-icon-white Artboard 1? next-icon-left next-icon-right-left next-icon-left-ochre next-icon next-icon-right-grey next-icon-right-ochre plus-with-circle-iconP search-fw-icon? search-icon-ochre search-icon-white

5 Et Al Walderggaard Pr

Prince, St. Croix, 00840
$599,000
3 Beds
3 Baths
1,800 Sqft

Highlights of 5 Et Al Walderggaard Pr

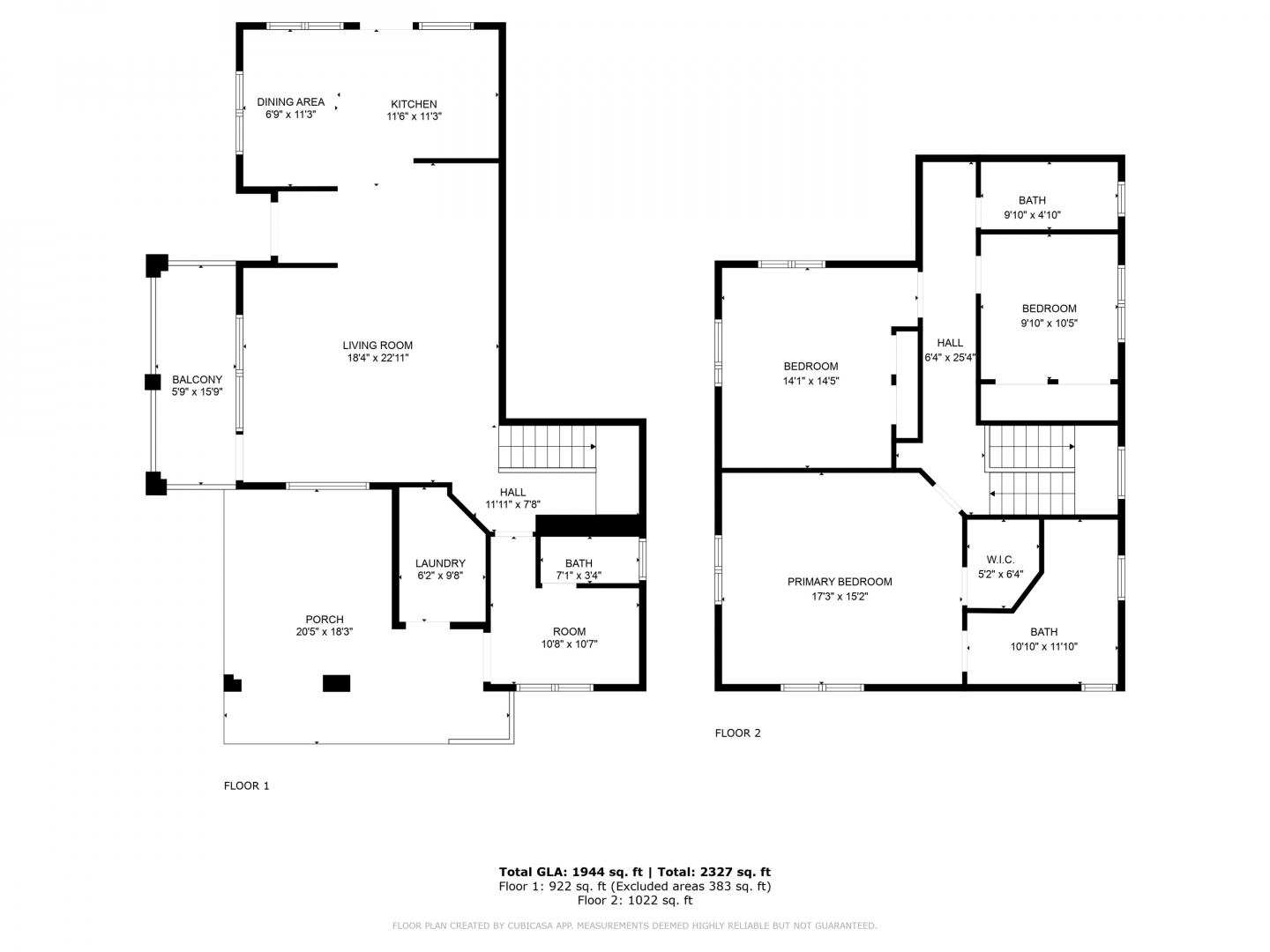
Approx Int Sqft
1,800
Lot Acres
4.34
Quarter
Prince
Sub Type
Residential - Single
Total Bathrooms
3
Total SqFt
2,200
Baths - Half
1
MLS #
25-1731
Status
Active
Total Approx. SqFt
2,200
Total Bedrooms
3
Year Built
2000
  • Property Description
    Ever dreamt of being a gentleman farmer? even better, a farmer in a lush semi-tropical rainforest in the Caribbean? Get this- a solar-powered 3 bed/2.5 bath concrete Farmhouse + more than 4 acres of organic fully fenced fruit orchards, 2 wells, an irrigation system, workshop, green house, coops & very nice farm equipment are nestled in a valley below Mt. Eagle. This special property offers 4 subdivided plots- the house sits on Plot 5 which is 1 acre. Sell or lease the remaining farmland or keep it as a 4 acre farm. Get creative! A natural seasonal ghut runs along the western boundary to supplement the sweet water wells feeding the irrigation system. The orchards are traversed by well-planned trails. The house is a sturdy structure with peek-a-boo South Shore views & 2 patios.
  • Additional Info
    • Restrictions: Of Record
    • Zoning: R-1
  • Amenities
    • Furnished: Partial
  • Fees and Taxes
    • Tax Year: 2025
    • Taxes: 473.13

Listing courtesy of Blue Sky Real Estate, (340) 719-1409.

Schedule a tour

  • This field is for validation purposes and should be left unchanged.

About this area
St. Croix Real Estate

Price Range: $57,000 - $5,950,000

5 Et Al Walderggaard Pr, Prince St. Croix, 00840

Map

Loading Map...

5 Et Al Walderggaard Pr

Similar Listings

X1X 105 St. George Pr 1
37 Photos
4 Beds 3 Baths 1,600 Sqft 0.41 Acre
Residential - 1 Apt
105 St. George Pr
Prince, St. Croix
X1X 123 St. George Pr 1
33 Photos
2 Beds 2 Baths 1,700 Sqft 0.48 Acre
Residential - Single
123 St. George Pr
Prince, St. Croix
X1X 147-a Carlton We 1
106 Photos
4 Beds 6 Baths 1,200 Sqft 3.04 Acre
2 - 4 Multi Units
147-a Carlton We
West End, St. Croix
PENDING
X1X 6 Orange Grove We 1
38 Photos
2 Beds 2 Baths 1,550 Sqft 1.15 Acre
Residential - Single
6 Orange Grove We
West End, St. Croix
X1X 174 Little La Grange We 1
48 Photos
2 Beds 2.5 Baths 880 Sqft 0.92 Acre
Residential - 1 Apt
174 Little La Grange We
West End, St. Croix
SOLD
X1X 92 Frederikshaab We 1
21 Photos
5 Beds 3 Baths 3,478 Sqft 0.68 Acre
Residential - Single
92 Frederikshaab We
West End, St. Croix
SOLD
X1X Rem 25, Et Carlton We 1
94 Photos
3 Beds 2 Baths 2,500 Sqft 4.5 Acre
Residential - Single
Rem 25, Et Carlton We
West End, St. Croix
SOLD
X1X 216/217 Little La Grange We 1
90 Photos
3 Beds 3 Baths 2,080 Sqft 2.8 Acre
Residential - 1 Apt
216/217 Little La Grange We
West End, St. Croix
SOLD
X1X 216 217 Little La Grange We 1
41 Photos
3 Beds 3 Baths 1,505 Sqft 2.8 Acre
Residential - 1 Apt
216 217 Little La Grange We
West End, St. Croix
SOLD
X1X 24 Orange Grove We 1
43 Photos
3 Beds 3 Baths 1,200 Sqft 2.07 Acre
Residential - 1 Apt
24 Orange Grove We
West End, St. Croix
SOLD
X1X 12 Carlton We 1
38 Photos
4 Beds 4.5 Baths 2,629 Sqft 2.06 Acre
2 - 4 Multi Units
12 Carlton We
West End, St. Croix
Picture of an interior
Picture of an interior
Picture of an interior
Picture of an interior
Picture of an interior
Picture of an interior
Picture of an interior
Picture of an interior
Picture of an interior
Picture of an interior
  • This field is for validation purposes and should be left unchanged.

By joining you agree to our Terms of Use and Privacy Policy