Artboard 1? alert-icon? Artboard 1? ? ? delete-icon? edit-icon? email-icon hide-hover-icon? Artboard 1? login-icon-white Artboard 1? next-icon-left next-icon-right-left next-icon-left-ochre next-icon next-icon-right-grey next-icon-right-ochre plus-with-circle-iconP search-fw-icon? search-icon-ochre search-icon-white

N4 Coakley Bay Eb - Coakley Bay

East End 'b', St. Croix, 00820
$345,000
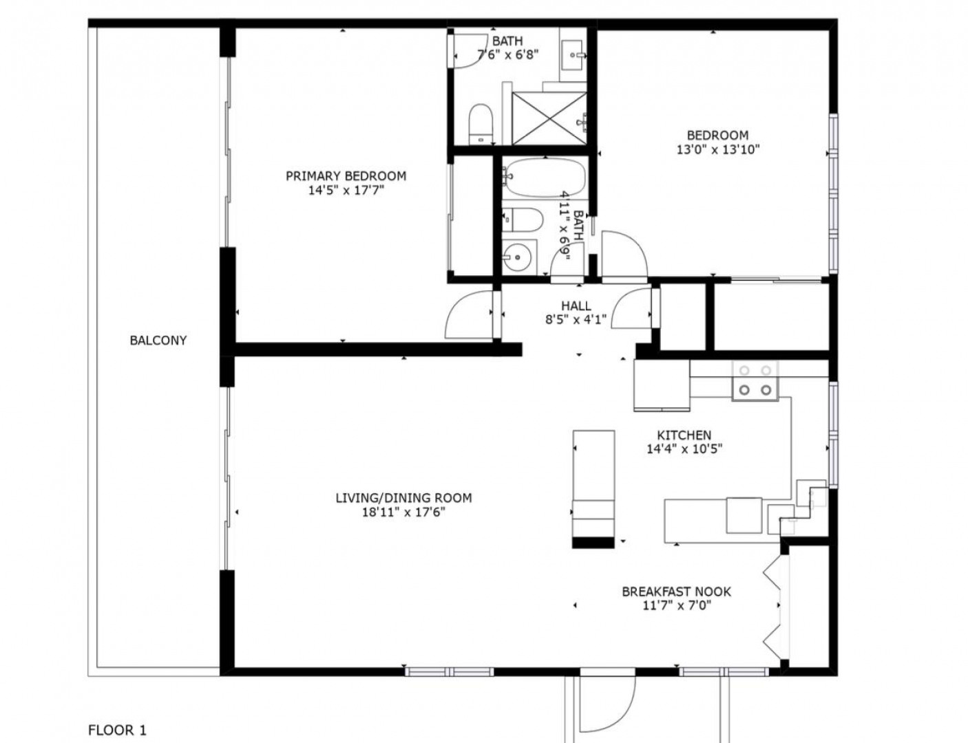
2 Beds
2 Baths
1,200 Sqft

Highlights of N4 Coakley Bay Eb

Approx Int Sqft
1,200
Quarter
East End 'B'
Sub Type
Condominium
Total Bathrooms
2
Total SqFt
1,450
MLS #
23-1052
Status
Closed
Total Approx. SqFt
1,450
Total Bedrooms
2
Year Built
1980
  • Property Description
    Walk into this renovated 2 bedroom, 2 bathroom Condo and be stunned by the big views of the ocean, Buck Island and the surrounding green valleys. It features an open floor concept kitchen, a large gallery and privacy as it is a corner unit at the end of the upper road. Enjoy the hillside breeze or A/Cs throughout the Condo. The unit comes fully furnished, with plenty of storage space as well as washer/dryer. All you need is your suitcase. This beautiful Condo is move-in ready for you, your vacation or long-term renters. HOA fees include insurance, internet, water, monthly pest control, an auto generator powering all units in the complex, a mailbox on site, a beautifully maintained pool and on-site management. A bonus are the restaurant ''the Goat'' and also a hair salon on property.
  • Additional Info
    • Condo Name: Coakley Bay
    • Intended Use: Other
  • Amenities
    • Furnished: Yes
    • Pool: Yes
  • Fees and Taxes
    • Condo Fee: $1539.00
    • Taxes: 596.04
    • Tax Year: 2022

Listing courtesy of Calabash Real Estate, (340) 718-5285.

Schedule a tour

  • This field is for validation purposes and should be left unchanged.

About this area
St. Croix Real Estate

Price Range: $57,000 - $5,950,000

N4 Coakley Bay Eb, East End 'b' St. Croix, 00820

Map

Loading Map...

N4 Coakley Bay Eb

Similar Listings

X1X H-8 Coakley Bay Eb 1
23 Photos
X1X D4 Coakley Bay Eb 1
39 Photos
X1X G3 Coakley Bay Eb 1
25 Photos
X1X F 5 Coakley Bay Eb 1
28 Photos
PENDING
X1X F-12 Coakley Bay Eb 1
47 Photos
X1X A7 Coakley Bay Eb 1
44 Photos
SOLD
X1X N2 Coakley Bay Eb 1
28 Photos
SOLD
X1X N1 Coakley Bay Eb 1
37 Photos
3d-tour-icon 3D Tour
SOLD
X1X L-6 Coakley Bay Ea 1
31 Photos
SOLD
X1X 2 Coakley Bay Eb 1
40 Photos
SOLD
X1X J10 Coakley Bay Eb 1
29 Photos
SOLD
X1X M2 Coakley Bay Eb 1
25 Photos
Picture of an interior
Picture of an interior
Picture of an interior
Picture of an interior
Picture of an interior
Picture of an interior
Picture of an interior
Picture of an interior
Picture of an interior
Picture of an interior
  • This field is for validation purposes and should be left unchanged.

By joining you agree to our Terms of Use and Privacy Policy