Artboard 1? alert-icon? Artboard 1? ? ? delete-icon? edit-icon? email-icon hide-hover-icon? Artboard 1? login-icon-white Artboard 1? next-icon-left next-icon-right-left next-icon-left-ochre next-icon next-icon-right-grey next-icon-right-ochre plus-with-circle-iconP search-fw-icon? search-icon-ochre search-icon-white

210 La Grande Princesse Qu - Granada Del Mar

Queen, St. Croix, 00820
$320,000
2 Beds
2 Baths
1,200 Sqft

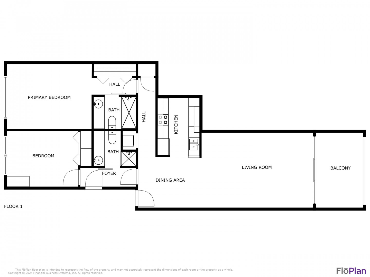
Highlights of 210 La Grande Princesse Qu

Approx Int Sqft
1,200
Quarter
Queen
Sub Type
Condominium
Total Bedrooms
2
MLS #
24-875
Status
Closed
Total Bathrooms
2
Year Built
1972
  • Property Description
    Welcome to your beachside retreat! This fully renovated, second-floor condo offers the perfect blend of comfort and convenience. With 2 bedrooms, 2 bathrooms, and a thoughtful layout, this unit is ideal for both investors seeking opportunity and individuals looking for a charming island home.Step inside to discover a beautifully updated interior, featuring quartz countertops in the kitchen and bathrooms, new A/C units throughout the Condo as well as a new tankless hot water heater for efficiency. One standout feature of this property is the added interior door to create a separate guest bedroom suite, which can be accessed via the second unit entrance for added privacy. The property is located just steps away from the beach and only a 10-minute drive to Christiansted Town.
  • Additional Info
    • Condo Name: Granada Del Mar
    • Waterfront: Yes
    • Intended Use: Other
  • Amenities
    • Furnished: Partial
    • Pool: Yes
  • Fees and Taxes
    • Condo Fee: $755.00
    • Taxes: 601.62
    • Tax Year: 2023

Listing courtesy of Calabash Real Estate, (340) 718-5285.

Schedule a tour

  • This field is for validation purposes and should be left unchanged.

About this area
St. Croix Real Estate

Price Range: $57,000 - $5,950,000

210 La Grande Princesse Qu, Queen St. Croix, 00820

Map

Loading Map...

210 La Grande Princesse Qu

Similar Listings

X1X 107 La Grande Princesse Qu 1
31 Photos
X1X 201 La Grande Princesse Qu 1
37 Photos
X1X O-2 La Grande Princesse Co 1
33 Photos
X1X N2 La Grande Princesse Co 1
39 Photos
X1X Q-2 La Grande Princesse Qu 1
25 Photos
SOLD
X1X 207 La Grande Princesse Co 1
35 Photos
3d-tour-icon 3D Tour
SOLD
X1X 107 La Grande Princesse Qu 1
30 Photos
SOLD
X1X 303 La Grande Princesse Co 1
21 Photos
SOLD
X1X 105 La Grande Princesse Qu 1
47 Photos
SOLD
X1X 103 La Grande Princesse Co 1
46 Photos
SOLD
X1X 312 La Grande Princesse Co 1
40 Photos
Picture of an interior
Picture of an interior
Picture of an interior
Picture of an interior
Picture of an interior
Picture of an interior
Picture of an interior
Picture of an interior
Picture of an interior
Picture of an interior
  • This field is for validation purposes and should be left unchanged.

By joining you agree to our Terms of Use and Privacy Policy