Artboard 1? alert-icon? Artboard 1? ? ? delete-icon? edit-icon? email-icon hide-hover-icon? Artboard 1? login-icon-white Artboard 1? next-icon-left next-icon-right-left next-icon-left-ochre next-icon next-icon-right-grey next-icon-right-ochre plus-with-circle-iconP search-fw-icon? search-icon-ochre search-icon-white

2,3,4-a, 4 Strand Street Ch

Christiansted, St. Croix, 00820
$4,000,000
13 Baths
23,000 Sqft

Highlights of 2,3,4-a, 4 Strand Street Ch

Approx Int Sqft
23,000
MLS #
21-796
Status
Active
Total Bathrooms
13
Year Built
1900
Lot Acres
0.50
Quarter
Christiansted
Total Approx. SqFt
23,000
Total SqFt
23,000
  • Property Description
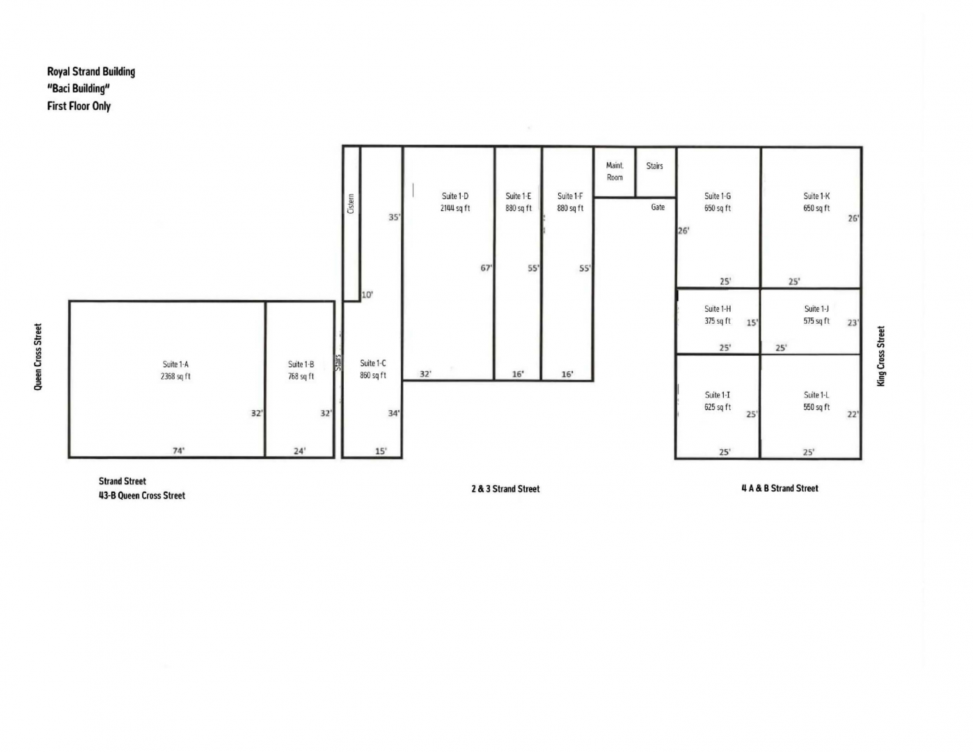
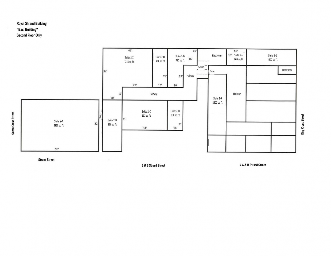
    A very rare investment property in the heart of historic Christiansted in the Enterprise Opportunity Zone. A total of twenty-three rental spaces. 23,000 square feet with multi uses including office, retail, restaurant/cafe and apartment. Great rent roll, almost 80% occupancy. Restaurant space ready for immediate occupancy. Office suites that can be subdivided. Maintained with on site staff. Separately metered suites. Excellent location just steps from the Government Parking Lot. Accessibility lift for tenants/patrons with disabilities. Hurricane shutters. Storage room. OWNER FINANCING AVAILABLE!
  • Additional Info
    • Restrictions: Yes
    • Zoning: B-1
  • Amenities
    • Furnished: Partial
  • Fees and Taxes
    • Tax Year: 2020
    • Taxes: 3427.00

Listing courtesy of Calabash Real Estate, (340) 718-5285.

Schedule a tour

  • This field is for validation purposes and should be left unchanged.

About this area
Christiansted Real Estate

Price Range: $460,000 - $1,750,000

2,3,4-a, 4 Strand Street Ch, Christiansted St. Croix, 00820

Map

Loading Map...

2,3,4-a, 4 Strand Street Ch

Similar Listings

X1X 55 55-a King Street Ch 1
65 Photos
Picture of an interior
Picture of an interior
Picture of an interior
Picture of an interior
Picture of an interior
Picture of an interior
Picture of an interior
Picture of an interior
Picture of an interior
Picture of an interior
  • This field is for validation purposes and should be left unchanged.

By joining you agree to our Terms of Use and Privacy Policy