Artboard 1? alert-icon? Artboard 1? ? ? delete-icon? edit-icon? email-icon hide-hover-icon? Artboard 1? login-icon-white Artboard 1? next-icon-left next-icon-right-left next-icon-left-ochre next-icon next-icon-right-grey next-icon-right-ochre plus-with-circle-iconP search-fw-icon? search-icon-ochre search-icon-white

19 -5 Mt. Welcome Ea

East End 'a', St. Croix, 00820
$1,750
616 Sqft

Highlights of 19 -5 Mt. Welcome Ea

Approx Int Sqft
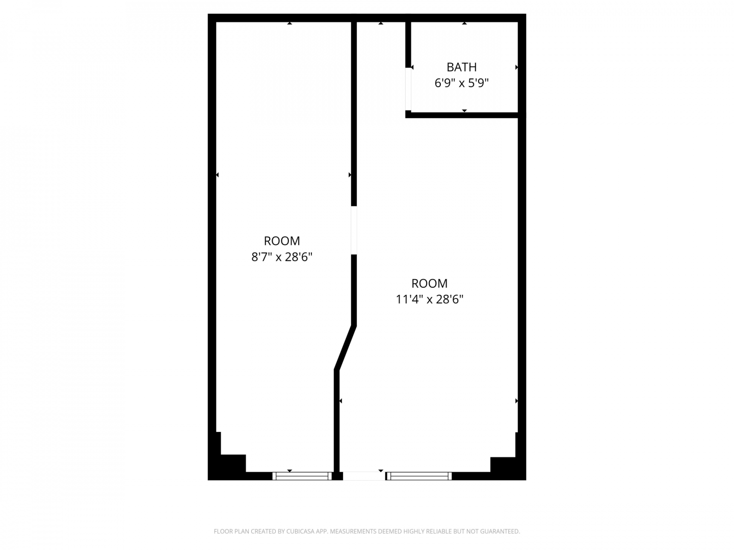
616
MLS #
25-2120
Quarter
East End 'A'
Sub Type
Commercial
Total SqFt
616
Lot Acres
0.42
Parking
Yes
Status
Closed
Total Approx. SqFt
616
Unit #
1
  • Property Description
    Positioned at the crossroads of the Bypass, Gallows Bay, and Canegata Ballpark, this 616 square-foot space offers exceptional visibility and convenience. The layout includes two long private rooms and a bathroom--ideal for a variety of business types.Perfect for a medical or dental office, wellness spa, hair salon, professional practice, or even a cannabis dispensary, this flexible space adapts to your vision.Stonehouse Junction is currently undergoing a full-scale renovation and revitalization, transforming the complex into a premier commercial destination poised to attract consistent foot traffic and new clientele.
  • Features
    • Flooring: Other
    • Roof: Galvanized
  • Additional Info
    • Available Date: November 12, 2025
    • Sewer: City
    • Water Utility: City
    • Intended Use: Primary
    • Street Front: Yes
    • Zoning: B-2
  • Amenities
    • Amenities: High Traffic, Storefront, Shops
    • Furnished: 1

Listing courtesy of Calabash Real Estate, (340) 718-5285.

Schedule a tour

  • This field is for validation purposes and should be left unchanged.

About this area
St. Croix Real Estate

Price Range: $57,000 - $5,950,000

19 -5 Mt. Welcome Ea, East End 'a' St. Croix, 00820

Map

Loading Map...

19 -5 Mt. Welcome Ea

Similar Listings

Picture of an interior
Picture of an interior
Picture of an interior
Picture of an interior
Picture of an interior
Picture of an interior
Picture of an interior
Picture of an interior
Picture of an interior
Picture of an interior
  • This field is for validation purposes and should be left unchanged.

By joining you agree to our Terms of Use and Privacy Policy